維特沃斯自動汽車衡稱重系統基礎施工要求
自動汽車衡稱重系統結合最新的計算機軟硬件技術,是一款在大型廠礦、煤炭等行業受歡迎的稱重設備,具有稱量迅速準確、數字顯示、直觀易讀、穩定可靠、操作簡單、預防人為作弊等特點。在安裝之前首先要做得就是基礎。下面簡單的介紹下自動汽車衡基礎的安裝技術。

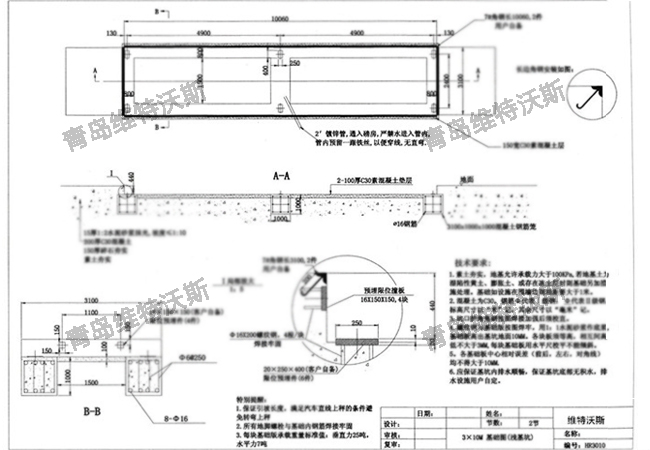
自動汽車衡稱重系統基礎部分:
1、電纜導線管用戶可根據基礎中所給位置選用2#聚乙烯管材,并應盡量減少彎曲,且予穿一根直徑為2mm鋼絲,以備穿電纜時作引線用。磅房電源必須配置地線,傳感器、儀表及計算機等獨立接地,接地電阻小于4Ω。
2、引坡長度3000和8000為參考尺寸,用戶可根據場地情況自行決定,但以適用為準。
3、基礎圖為用戶設計基礎依據,用戶可根據當地土壤耐壓力,凍層、水位情況和建筑要求等確定,鋼筋混凝土厚度及鋼筋直徑、間距、數量僅供參考。
4、前后斜引道與主體基礎分開施工,各承重點載荷后,確保其下沉量少于2mm,基礎下為碎石灰土鋪平,以下為素土夯實。
5、8處承重預埋件單個載荷應大于25000kg,使用中單塊基礎不得出現裂紋,且8處承重預埋件水平度≤3mm,承重予埋件用戶自備。
6、8處承重予埋件安裝處應先留出予留孔,為方便二次灌漿,承重予埋件中心可適當鉆孔,予留孔尺寸400×400×350現場施工時可適當放大,基礎混凝土凝固后再進行二次灌漿,灌漿用混凝土的水泥比例就加大,并保證灌足灌滿,不允許出現氣孔、氣泡和夾雜物,全部凝固后方可使用。
7、素土夯實,要求地基承載力R≥1×105N/m2,上鋪30-1000px厚碎石夯實,整塊底板應一次性澆筑砼,混凝土用425#或以上硅酸鹽水泥拌制,梁中受力主筋用Ⅱ級螺紋鋼,余為Ⅰ級,┗90×10角鋼焊后校直才可予埋,埋后不直度不得大于3mm。
8、地基梁下夯保護層為875px,板中保護層夯500px。
9、鋼筋圖中序號為②④⑦⑨箍筋端面必須90°(參見基礎圖)折彎,彎頭長度約125px,相鄰兩箍筋彎頭必須錯開。
10、穿線管全長如超過50米,請電話通知我公司(電纜長度一般為50米)
注:秤體兩側(行車方向)各預留1250px空間,便于安裝及調試。

自動汽車衡稱重系統車號識別系統部分:
1、車號識別系統天線及電源安裝在防雨篷內橫梁上。靠近磅房的防雨篷立柱旁預留穿線管,露出高度1500mm。管內預穿一根牽引鋼絲,以備穿線用,同時盡量避免死彎。
磅房、擋車器及信號燈部分:
1、磅房長、寬、高由用戶自主定奪,以適用為主。
2、兩處擋車器及信號燈基礎為600×600混凝土基礎,深度最小為400mm,高度由用戶自定(機箱高度1050mm),預留210×210?18的預留孔4個,中間為預埋穿線管,一端穿過擋車器及信號燈基礎板中心,露出高度100mm,一端接入操作室,不得有水及雜物進入,管內預穿一根牽引鋼絲,以備穿線用,同時盡量避免死彎。
3、二臺地磅與操作室相對位置由用戶根據現場及項目情況自主定奪。
4、擋車器抬起高度3.5米,如安裝在防雨篷內,則須預留空間。
以上具體要求根據實際情況操作,維特沃斯廠家安裝自動汽車衡稱重系統時會有相關技術人員到場支持,指導安裝調試。
相關資訊
最新產品
同類文章排行
- 一臺地磅是怎樣煉成的?
- 防爆地磅怎么選?什么是整機防爆?防爆地磅哪家好?防爆地磅還得是維特沃斯!
- 山西煤場地磅,礦區專用無人值守地磅,山西煤場地磅怎么選?
- 新疆地磅誰家好?新疆有哪些地磅廠家?新疆的地磅廠家有哪些?
- 青海地磅誰家好?青海有哪些地磅廠家?青海的地磅廠家有哪些?
- 湖南地磅?湖南有哪些地磅廠家?湖南靠譜的地磅廠家有哪些?
- 福建地磅誰家好?福建有哪些地磅廠家?福建的地磅廠家有哪些?
- 浙江地磅誰家好?浙江有哪些地磅廠家?浙江的地磅廠家有哪些?
- 上海地磅誰家好?上海有哪些地磅廠家?上海的地磅廠家有哪些?
- 黑龍江地磅廠家誰家好?黑龍江地磅品牌有哪些?在黑龍江購買地磅誰家好?
最新資訊文章
您的瀏覽歷史






